ℹ️ Astăzi, domnul primar Gerald Oscar Simonis a semnat contractul de finanțare pentru proiectul finanțat prin Programul Incluziune și Demnitate Socială 2021–2027, Prioritatea P07 – Sprijin pentru persoanele cu dizabilități, apelul de proiecte PIDS/550/PIDS_P7/OP4 – Dezvoltarea de servicii de îngrijire și suport de calitate pentru persoanele cu dizabilități și îngrijitorii acestora.
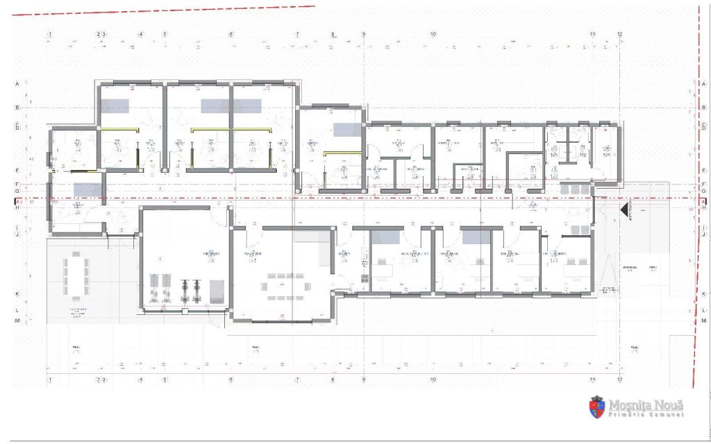
🏗 Proiectul vizează construirea și dotarea Centrului Respiro Moșnița Nouă, un centru dedicat persoanelor vârstnice și celor cu dizabilități, oferind servicii de sprijin, recuperare și îngrijire specializată.
🤝 Proiect depus în parteneriat cu Asociația Grupul de Acțiune Locală Colinele Recaș.
📍 Locație: Urseni, Str. Islaz
▪️ Suprafață construită desfășurată: 𝟒𝟖𝟏,𝟔𝟕 𝐦𝐩
▪️ Regim: Parter
▪️ Dotări și spații incluse:
▪️ spații administrative
▪️ 5 camere
▪️ sală pentru activități
▪️ cabinet de kinetoterapie
▪️ cabinet medical
▪️ cabinet de consiliere psihologică
💰 Valoarea eligibilă a proiectului: 𝟏𝟎.𝟒𝟒𝟐.𝟗𝟎𝟐,𝟓𝟎 𝐥𝐞𝐢 (cu TVA)
💰 Valoare neeligibilă: 𝟗𝟒𝟑.𝟗𝟎𝟑,𝟕𝟒 𝐥𝐞𝐢 (cu TVA)
⏳ Durata estimată a construcției: 𝟏𝟐 𝐥𝐮𝐧𝐢, după finalizarea proiectului tehnic și semnarea contractului de execuție.
🤲 Acest centru reprezintă un pas important pentru creșterea calității vieții persoanelor vulnerabile din comunitatea noastră și pentru sprijinirea familiilor acestora.



